Chiamaci allo
+39 389 0473047
oppure scrivici
info@f-immobiliare.it
Si riceve su appuntamento
+39 389 0473047
oppure scrivici
info@f-immobiliare.it
Si riceve su appuntamento
Dal Lunedì al Venerdì
dalle ore 9.30 alle 12.30 e
alle 15.00-19.00
Il sabato dalle 9.30 alle 12.30
Domenica chiuso
C28
CESSIONE RAMO D' AZIENDA RISTORANTE DI PRESTIGIO - LIDO DI JESOLO CENTRO RIF. ANNUNCIO C28 Per informazioni e visite chiamare 389.0473047
Opportunità "Chiavi in Mano" Immediata nella Posizione Più Esclusiva di Jesolo
Si cede il ramo d'azienda di un ristorante rinomato e perfettamente avviato, situato nel cuore pulsante di Jesolo Lido, a un passo dalla celebre Via Bafile.
L'attività gode di una visibilità eccezionale: si trova in una zona centralissima che, durante le serate estive, è accanto ad un salotto pedonale vibrante, garantendo un flusso costante e garantito di residenti e turisti di alto livello, essenziale per il successo del business.
Questo non è solo un ristorante, è un'attività curata con talento, passione e maniacale attenzione ad ogni dettaglio da parte dell'attuale proprietà. Fin dall'ingresso, l'atmosfera è calda, accogliente e invita ad entrare, promettendo un'esperienza gastronomica di alta qualità e un benvenuto sincero.
Caratteristiche e Layout del Locale:
Il ristorante si sviluppa su spazi interni ed esterni ottimizzati per l'ospitalità:
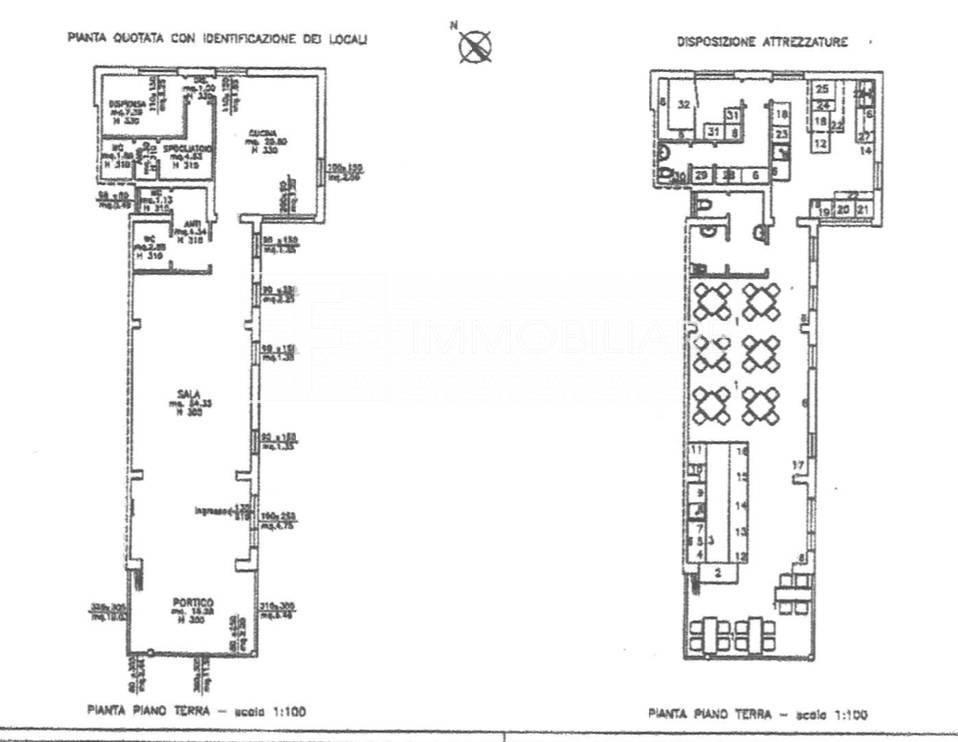
Ampia e luminosa sala interna, arredata con tavoli in legno e sedie imbottite dal design moderno, per un totale di 30 posti a sedere.
L'ingresso è caratterizzato da una splendida vetrata "sun-room" completamente apribile, che garantisce luce naturale e continuità con l'esterno. In fondo alla sala si trova un funzionale bancone bar per la preparazione di bevande e cocktail.
Plateatico Esterno: Spazio esterno riservato con 28 posti a sedere, delimitato con gusto da eleganti piante verdi in vaso, ideale per le serate estive.
Area Tecnica: Un disimpegno, posto dietro il bancone, conduce ai servizi igienici per i clienti e alla cucina professionale, attrezzata con piastre, fuochi, forni, zona lavaggio e impiattamento.
Logistica: Dalla cucina si accede a un ulteriore disimpegno che serve il laboratorio per la preparazione dei dolci, oltre a spogliatoio e bagno riservati al personale.
Impianti: L'immobile è dotato di un efficiente impianto di riscaldamento e raffrescamento, permettendo un'apertura e un comfort ottimale tutto l'anno.
La Cessione e L'Investimento "Chiavi in Mano":
Il locale viene ceduto con la formula "chiavi in mano". Non sono necessari interventi di ristrutturazione o acquisto di attrezzature: arredi e attrezzature sono in condizioni semi-nuove, regolarmente manutenuti e perfettamente funzionanti. La cessione d'azienda comprenderà, previo inventario, tutte le attrezzature, gli arredi e l'avviamento presenti.
È l'occasione ideale per chef, imprenditori della ristorazione o investitori che desiderano entrare immediatamente nel mercato turistico di Jesolo con un'attività di successo, che vanta già un'ottima reputazione e un avviamento solido.
Il canone di locazione e ulteriori dettagli finanziari saranno forniti in fase di trattativa riservata.
RIF. ANNUNCIO C28 Per maggiori informazioni e fissare un appuntamento per una visita, contattare il 389.0473047. Le immagini sono fornite al solo scopo illustrativo e non costituiscono elemento contrattuale.
Opportunità "Chiavi in Mano" Immediata nella Posizione Più Esclusiva di Jesolo
Si cede il ramo d'azienda di un ristorante rinomato e perfettamente avviato, situato nel cuore pulsante di Jesolo Lido, a un passo dalla celebre Via Bafile.
L'attività gode di una visibilità eccezionale: si trova in una zona centralissima che, durante le serate estive, è accanto ad un salotto pedonale vibrante, garantendo un flusso costante e garantito di residenti e turisti di alto livello, essenziale per il successo del business.
Questo non è solo un ristorante, è un'attività curata con talento, passione e maniacale attenzione ad ogni dettaglio da parte dell'attuale proprietà. Fin dall'ingresso, l'atmosfera è calda, accogliente e invita ad entrare, promettendo un'esperienza gastronomica di alta qualità e un benvenuto sincero.
Caratteristiche e Layout del Locale:
Il ristorante si sviluppa su spazi interni ed esterni ottimizzati per l'ospitalità:
Ampia e luminosa sala interna, arredata con tavoli in legno e sedie imbottite dal design moderno, per un totale di 30 posti a sedere.
L'ingresso è caratterizzato da una splendida vetrata "sun-room" completamente apribile, che garantisce luce naturale e continuità con l'esterno. In fondo alla sala si trova un funzionale bancone bar per la preparazione di bevande e cocktail.
Plateatico Esterno: Spazio esterno riservato con 28 posti a sedere, delimitato con gusto da eleganti piante verdi in vaso, ideale per le serate estive.
Area Tecnica: Un disimpegno, posto dietro il bancone, conduce ai servizi igienici per i clienti e alla cucina professionale, attrezzata con piastre, fuochi, forni, zona lavaggio e impiattamento.
Logistica: Dalla cucina si accede a un ulteriore disimpegno che serve il laboratorio per la preparazione dei dolci, oltre a spogliatoio e bagno riservati al personale.
Impianti: L'immobile è dotato di un efficiente impianto di riscaldamento e raffrescamento, permettendo un'apertura e un comfort ottimale tutto l'anno.
La Cessione e L'Investimento "Chiavi in Mano":
Il locale viene ceduto con la formula "chiavi in mano". Non sono necessari interventi di ristrutturazione o acquisto di attrezzature: arredi e attrezzature sono in condizioni semi-nuove, regolarmente manutenuti e perfettamente funzionanti. La cessione d'azienda comprenderà, previo inventario, tutte le attrezzature, gli arredi e l'avviamento presenti.
È l'occasione ideale per chef, imprenditori della ristorazione o investitori che desiderano entrare immediatamente nel mercato turistico di Jesolo con un'attività di successo, che vanta già un'ottima reputazione e un avviamento solido.
Il canone di locazione e ulteriori dettagli finanziari saranno forniti in fase di trattativa riservata.
RIF. ANNUNCIO C28 Per maggiori informazioni e fissare un appuntamento per una visita, contattare il 389.0473047. Le immagini sono fornite al solo scopo illustrativo e non costituiscono elemento contrattuale.
Dati principali
Codice
C28
Zona
Lido di Jesolo
Tipologia
Attività commerciale
Stato Attuale
Libero al rogito
Richieste
Planimetria
Indirizzo e mappa
Fai la tua richiesta
oppure
Contattaci
Contattaci
Altre proposte